¿Te llamamos?

Buscar Ref:
Email
valencia@buscatucasa.es
Mov
695 790 752
Tel
963 282 889

Pisos y Casas en Valencia

CHALET A MEDIO CONSTRUIR | 170.000 €, 199 m²

170.000 €
compartir
    facebook
  • twiter
  • whatsapp
favoritos
icono_email
icono_email
icono_email
icono_email
Oportunidad

Ref: VCIA-1442. CHALET A MEDIO CONSTRUIR en la URBANIZACIÓN LOS LAGOS, en suelo urbano con PGOU.
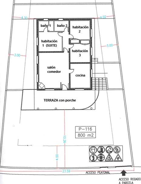
El chalet tiene de 199 m² de superficie construida (172m² de superficie útil) sobre parcela de 800m² (comprobados por informe topográfico y cambiado en catastro) en ubicación con FANTÁSTICAS E INIGUALABLES VISTAS.
Cuenta con PROYECTO BÁSICO Y DE EJECUCIÓN. (HAY QUE RENOVARLO)
Distribuido en 2 plantas: PLANTA SUPERIOR + SÓTANO.
Parcela con 19 metros de anchura de fachada y unos 37`5 metros de largo (de media), con separación de 5 metros de lindes en fachadas y 3 metros de lindes sobre medianeras.
El chalet, de nueva construcción tiene ya realizadas las fases de obra siguientes:
• MOVIMIENTO DE TIERRAS: desbroce de la parcela, excavación de la cimentación y redistribución tierras sobrantes
• CIMENTACIÓN: llenado de zanjas de cimentación con hormigón armado HA-25
• RED DE SANEAMIENTO: canalizaciones de PVC, arquetas, etc…
• ESTRUCTURA DE HORMIGÓN: muros de carga y pilares de hormigón H-60, vigas, forjado con bovedillas de cemento y rellenos de hormigón HA-25
• ESCALERA XTERIOR CON LOSA INCLINADA
• SOLERA EN SÓTANO-GARAJE con hormigón HA-25
• CUBIERTA: cubierta inclinada de TEJA MIXTA (con aislamiento de fibra de vidrio) sobre forjado plano en vivienda e inclinado sobre terraza
• ALBAÑILERÍA: paredes exteriores (y muros de carga) de bloques de hormigón, cámara de poliestireno extrusionado, paredes de ladrillo (enlucido de yeso en paredes y techos).
• INSTALACIÓN DE FONTANERIA Y ELECTRICIDAD: realizada mediante red de distribución empotrada con tubería multicapa (fontanería) y tubo corrugado (electricidad).
• CARPINTERIA DE MADERA: instalación de pre-marcos.
• CARPINTERIA METÁLICA: instalación parcial de marcos de aluminio y rejas de seguridad en las ventanas. Puerta de entrada blindada.

La DISTRIBUCIÓN DE LA FUTURA VIVIENDA incorpora:
• PORCHE exterior de 43m²
• Hall de distribución
• Amplio salón-comedor 33m²
• Cocina independiente
• 3 dormitorios dobles (1 SUITE con baño y 2 habitaciones dobles)
• 2 baños completos (uno en suite)
TOTAL VIVIENDA 119m²
• SÓTANO de 30m² con GARAJE para 1 vehículo y TRASTERO (este espacio se puede utilizar para habilitar vivienda).

ORIENTACIÓN SURESTE.

Date el gustazo de vivir en Alginet, en la reconocida urbanización LOS LAGOS. Una propiedad rodeada de naturaleza y tranquilidad.
La ubicación de este chalet urbano es inmejorable! ESPECTACULARES VISTAS
Está situado en zona totalmente consolidada en una de las mejores zonas residenciales de Alginet. Si eres amante del senderismo, montañismo y ciclismo, prepárate para disfrutar.
Esta propiedad se encuentra ubicada a tan solo 3’5 kms de la población de Alginet y 30 km (sólo 30 minutos en coche del centro de Valencia).
Excelentes comunicaciones por CV-520 y A-7.


Servicios cercanos: Supermercado, Restaurantes

Situación
695790752
General
Referencia

VCIA-1442

Tipo de Inmueble

Chalet

Transacción

Venta

Situación
Provincia

Valencia

Población

ALGINET

Características
Estado del Inmueble Obra nueva
Superficie

199 m²

Habitaciones 3
Baños Baños: 2
Terraza icono_ok_software_inmobiliria  33m²
Patio icono_ok_software_inmobiliria
Exterior icono_ok_software_inmobiliria
Orientación SURESTE
Acabados
eficiencia_energetica_software_inmobiliaria
En Proceso de Certificación
Calcula tu hipoteca
Importe a financiar
Interés
años

Venta Chalet en ALGINET

170000 € | 199 m² | 3 Habitaciones | 2 Baños

Este sitio web utiliza Cookies propias y de terceros para recopilar información con la finalidad técnica, no se recaban ni ceden sus datos de carácter personal sin su consentimiento. Asimismo, se informa que este sitio web puede disponer de enlaces a sitios web de terceros con sus propias políticas de privacidad.


Cookies Técnicas2

Cookies de Terceros