¿Te llamamos?

Buscar Ref:
Email
valencia@buscatucasa.es
Mov
695 790 752
Tel
963 282 889

Pisos y Casas en Valencia

FANTÁSTICA VIVIENDA SEMINUEVA construida en 2010. | 170.000 €, 60 m²

170.000 €
compartir
    facebook
  • twiter
  • whatsapp
favoritos
icono_email
icono_email
icono_email
icono_email
Oportunidad

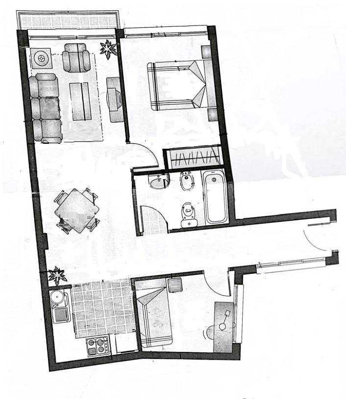
Ref: VCIA-1497. Acogedora vivienda situada en una zona tranquila y bien comunicada de Albuixech.
Tiene una superficie construida de 60 m², la vivienda ofrece una distribución funcional y cómoda, perfecta tanto como residencia habitual como para quienes buscan invertir.
Accedemos al hall de entrada amplio (con ventanal a patio de luces en el pasillo para mayor luminosidad).
El resto de la vivienda está bien distribuido sin pasillo.
La vivienda cuenta con 2 habitaciones, una de ellas doble con ventanal vistas a la huerta y armario de pared. El otro individual con ventanal a patio de luces
La zona de día se compone de un salón comedor amplio, con espacio para zona de estar y comedor, muy luminoso gracias a su balcón exterior ideal para disfrutar del aire libre (vistas a la huerta).
La cocina office, abierta al salón completamente equipada, con armariadas, bancada tipo Silestone, horno, vitro y campana extractora, electrodomésticos y una pequeña barra para desayunos, ofreciendo múltiples opciones.
Dispone de un baño completo con bañera, bidet.
Buenas calidades: Suelos de MÁRMOL vitrificado (grés en baño y cocina), paredes lisas, ventanales aluminio anodizado blanco, puertas de roble, AIRE ACONDICIONADO por split con bomba de frío-calor en salón, puerta de ENTRADA ACORAZADA.
La propiedad ha sido cuidadosamente mantenida y solo espera tu toque personal para convertirse en el hogar soñado.
Es una segunda planta CON ASCENSOR. Orientación NORESTE. Cuenta con TRASTERO.
Edificio de ladrillo caravista. Acceso al ascensor con unos pocos escalones (ascensor a cota 0 desde el garaje).
Opción perfecta para quienes deseen disfrutar de un estilo de vida semi-rural sin renunciar a las comodidades urbanas.
Destacar su buena ubicación en una zona muy tranquila a 5 minutos andando de la estación de tren y próxima a servicios, ayuntamiento.
Albuixech, al norte de Valencia capital a tan solo 10 minutos en coche. A 1km de la playa.
Disfrutará de un entorno residencial agradable con todos los servicios necesarios a su alcance: centro de salud, comercios, supermercados, y buenas combinaciones para desplazarse en transporte público a Valencia, otras localidades y playas.
A 4KM DEL PARQUE COMERCIAL EL MANAR.
Pertenece a la comarca de l’Horta Nord, en la provincia de Valencia y dista 11 km de Valencia Capital.


Servicios cercanos: Autobús, Metro, Colegios, Guardería, Biblioteca, Parque, Farmacia, Supermercado, Restaurantes, Mercado, Centro sanitario, Centro comercial, Centro deportivo

Situación
695790752
General
Referencia

VCIA-1497

Tipo de Inmueble

Piso

Transacción

Venta

Situación
Provincia

Valencia

Población

ALBUIXECH

Características
Estado del Inmueble Semi-nuevo
Año Construcción 2010
Superficie

60 m²

Altura
Cocina Office
Cocina equipada icono_ok_software_inmobiliria
Habitaciones 2
Baños Baños: 1
Balcón icono_ok_software_inmobiliria
Aire A. icono_ok_software_inmobiliria
Exterior icono_ok_software_inmobiliria
Orientación NORESTE
Amueblado icono_ok_software_inmobiliria
Electrodomésticos icono_ok_software_inmobiliria
Aceptan Mascotas icono_ok_software_inmobiliria
Acabados
Puerta principal Blindada
Ventanas Aluminio
Suelo Mármol
Armarios empotrados icono_ok_software_inmobiliria
eficiencia_energetica_software_inmobiliaria
En Proceso de Certificación
Calcula tu hipoteca
Importe a financiar
Interés
años

Venta Piso en ALBUIXECH

170000 € | 60 m² | 2 Habitaciones | 1 Baños

Este sitio web utiliza Cookies propias y de terceros para recopilar información con la finalidad técnica, no se recaban ni ceden sus datos de carácter personal sin su consentimiento. Asimismo, se informa que este sitio web puede disponer de enlaces a sitios web de terceros con sus propias políticas de privacidad.


Cookies Técnicas2

Cookies de Terceros